外階段付きで二世帯利用も可能な設計に加え、広い敷地と良好な住環境を確保。交通利便性や買い物環境の良さ、南向きの明るさと風通し、隣接建物のない開放感まで備えた、立地・空間・将来性を兼ね備えた住宅です。内覧できますのでお問い合わせお待ちしております。
シミュレーション
※シミュレーションの試算結果は、あくまでも目安であり実際の返済予定額と異なる場合がございます。また、借り入れを保証するものではございません。
物件詳細
| 物件種目 | 土地建物 | 価格 | 5,300万円 |
| 土地面積 | 496.20m² /150.10坪 | 建物面積 | 154.38m² /46.69坪 |
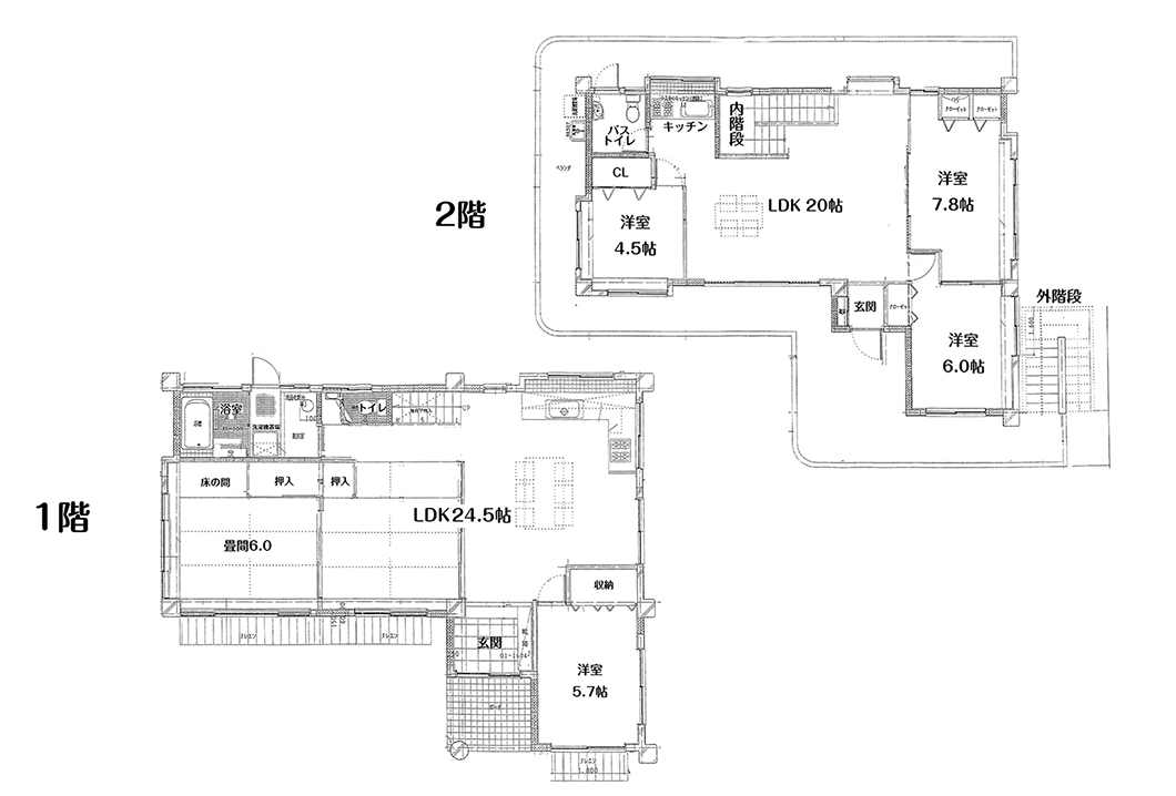
| 間取り | 5SLDK | 設備 | 電気、上水道、下水道、エアコン、給湯 |
| 構造 | 鉄筋コンクリートブロック造陸屋根2階建て | 築年月 | 1997年7月(築28年) |
| 国土法届出 | 不要 | 土地権利 | 所有権 |
| 地目 | 宅地 | 都市計画 | 区域外 |
| 状況 | 所有者居住中 | 引渡 | 相談 |
| 交通 | 当間バス停(徒歩約3分) | 取引態様 | 専任 |
| 所在地 | 南城市大里字仲間131番 | 近隣情報 | 南風原南IC、大里中学校、イオンタウン南城大里店、コンビニエンスストア、飲食店、コストコ、 |





















